帐号
注册
密码
登录
关闭
安全选项
找回密码
记住我
我的中心
登录或注册新用户,开通自己的个人中心
HIFI168首页
快速搜索
帖子标题
作者
版块
发烧论坛
»
发烧专区
»
HiFi乐趣
»
两套配制选择哪套
发烧专区
HiFi乐趣
音乐唱片
器材用家专区
在线试听
交易论坛
硬件交易
软件交易
返回列表
查看:
2036
|
回复:
7
两套配制选择哪套
[复制链接]
查看:
2036
|
回复:
7
发送短消息
UID
113675
精华
1
查看公共资料
搜索主题
搜索帖子
johnn7668
组别
论坛学士
生日
帖子
186
积分
194
性别
注册时间
2007-09-09
johnn7668
论坛学士
1
#
字体大小:
t
T
发表于
2007-10-20 23:23
|
只看楼主
B&W 703+路遥RA06+路遥RCD06/马兰士SA-14
PMC FB1+ +国都99+国都909
以前有人告诉过我国都99+909是配不上PMC FB1+的,但是我不知道还可以用什么呢? 国都99换成
audiolab 8000 Q+8000P好不好?CD机我想用斯巴克的CDT-17A或者力宝声2010 这样好不好?
b&w804我也想用,但是功放和CD机太贵了 我倒是想试试国产前级+柯颂V8I或者新德克XA8800MN或者斯巴克的A88T行不行,CD也用斯巴克CDT-17A,我听过斯巴克的A88T和CDT-17A的组合,觉得可以让804发挥不错的实力。如果实在前端太费钱就还是703吧,但是703和804只差5000,可惜啊!
先这样搞,以后再慢慢升级,这样好不好?
分享
转发
TOP
发送短消息
UID
113675
精华
1
查看公共资料
搜索主题
搜索帖子
johnn7668
组别
论坛学士
生日
帖子
186
积分
194
性别
注册时间
2007-09-09
johnn7668
论坛学士
2
#
字体大小:
t
T
发表于
2007-10-20 23:26
|
只看楼主
回复:两套配制选择哪套
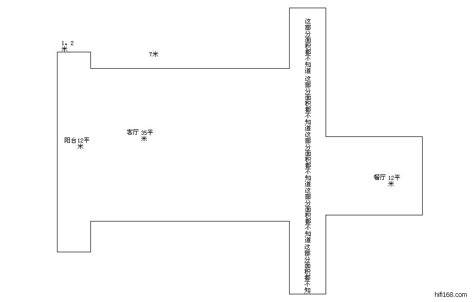
音乐听得杂,房间在60平米左右,连体厨房和客厅阳台,还有过道,总计超过60平米,单论客厅是35平米
TOP
发送短消息
UID
113675
精华
1
查看公共资料
搜索主题
搜索帖子
johnn7668
组别
论坛学士
生日
帖子
186
积分
194
性别
注册时间
2007-09-09
johnn7668
论坛学士
3
#
字体大小:
t
T
发表于
2007-10-21 18:26
|
只看楼主
回复:两套配制选择哪套
顶
TOP
发送短消息
UID
113675
精华
1
查看公共资料
搜索主题
搜索帖子
johnn7668
组别
论坛学士
生日
帖子
186
积分
194
性别
注册时间
2007-09-09
johnn7668
论坛学士
4
#
字体大小:
t
T
发表于
2007-10-23 21:42
|
只看楼主
回复: 两套配制选择哪套
这是偶家的倒霉连体房
asdfwe4234.JPG
(, 下载次数:14)
jpg
(2007/10/23 21:42:00 上传)
TOP
发送短消息
UID
70603
精华
3
查看公共资料
搜索主题
搜索帖子
Real
Real
组别
论坛博士后
生日
19720110
帖子
6380
积分
10592
性别
注册时间
2002-06-15
Real
论坛博士后
5
#
字体大小:
t
T
发表于
2007-10-23 22:00
|
只看该用户
回复:两套配制选择哪套
选2
扬声器换988
TOP
发送短消息
UID
113675
精华
1
查看公共资料
搜索主题
搜索帖子
johnn7668
组别
论坛学士
生日
帖子
186
积分
194
性别
注册时间
2007-09-09
johnn7668
论坛学士
6
#
字体大小:
t
T
发表于
2007-10-23 23:00
|
只看楼主
回复:两套配制选择哪套
国都988是静电音箱,我一点都不了解..听都没听过 价格多少啊? 大概在什么档次?
谢谢REAL;P
TOP
发送短消息
UID
113675
精华
1
查看公共资料
搜索主题
搜索帖子
johnn7668
组别
论坛学士
生日
帖子
186
积分
194
性别
注册时间
2007-09-09
johnn7668
论坛学士
7
#
字体大小:
t
T
发表于
2007-10-23 23:05
|
只看楼主
回复:两套配制选择哪套
B&W 703+路遥RA06+路遥RCD06
PMC FB1+ +国都99+国都909
这两个哪个好?
TOP
发送短消息
UID
70603
精华
3
查看公共资料
搜索主题
搜索帖子
Real
Real
组别
论坛博士后
生日
19720110
帖子
6380
积分
10592
性别
注册时间
2002-06-15
Real
论坛博士后
8
#
字体大小:
t
T
发表于
2007-10-24 00:49
|
只看该用户
回复:两套配制选择哪套
2010 +拜事通+FB1
Real 最后编辑于 2007-10-24 00:53:30
TOP
上一主题
|
下一主题
返回列表
高级编辑器
B
Color
Image
Link
Quote
Code
Smilies
默认表情
你需要登录后才可以发帖
登录
|
注册
发表回复
查看背景广告
隐藏
发新主题
发烧专区
HiFi乐趣
音乐唱片
器材用家专区
在线试听
交易论坛
硬件交易
软件交易
浏览过的版块
软件交易
硬件交易
音乐唱片
TOP
设置头像
个人资料
更改密码
用户组
收藏夹
积分