发烧论坛

注册

 

发新话题 回复该主题

请教各位,,,, [复制链接]

查看: 5255|回复: 22
1#
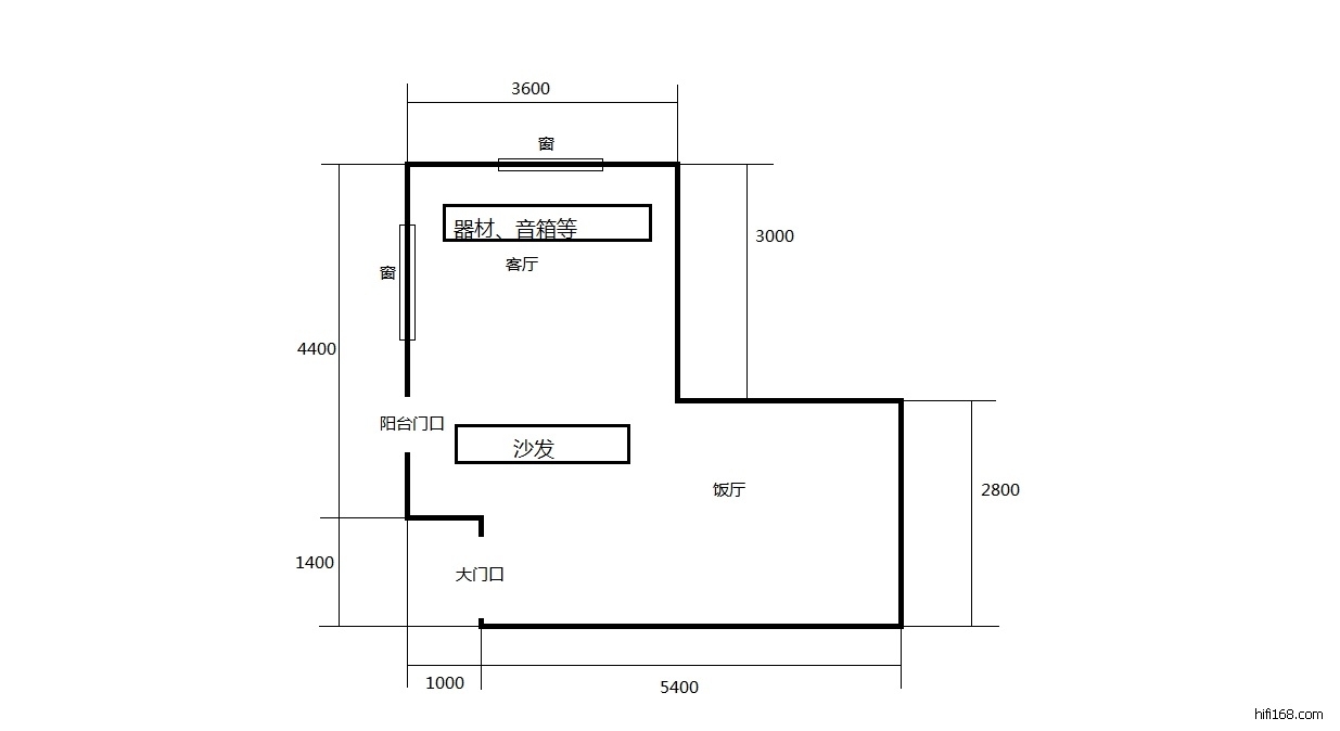
请大家给点意见,此L型厅如何摆放器材听音乐,才比较理想。谢谢!
现系统:马兰士CD17MKIII,美星KT88胆机,丹拿DM2/7音箱。
1.jpg (, 下载次数:1)

jpg(2013/10/12 15:37:32 上传)

1.jpg

L型厅 - 副本.png (, 下载次数:2)

png(2013/10/12 15:42:36 上传)

L型厅 - 副本.png

L型厅 - 副本.png (, 下载次数:6)

png(2013/10/12 15:47:04 上传)

L型厅 - 副本.png

最后编辑多半度 最后编辑于 2013-10-12 15:56:45
分享 转发
TOP
2#

真晕,重发了那么多图片。
TOP
3#

回复 3# 嘀咕 的帖子

这样摆放,后墙左右不对称,会不会不平衡呢?
TOP
4#

回复 5# 嘀咕 的帖子

多谢兄弟回复。
TOP
5#

回复 5# 嘀咕 的帖子

请问嘀咕兄?如果器材摆在左侧阳台长边,效果如何呢?这样大厅的活动空间会宽敞很多,也方便点。
TOP
6#

回复 8# 嘀咕 的帖子

感谢兄弟回复,
也是,遇到这样厅,挺头大的。
TOP
7#

回复 10# 砖家 的帖子

是的,大厅我也不想弄太多其它东西的,就正常家具摆放,听音乐看电视一起。
TOP
8#

回复 12# 阳光枫林 的帖子

多谢枫林兄的回复,是短边摆放器材吗?如何做些简单的处理会好?毕竟是大厅,大的处理不想弄。谢谢!
最后编辑多半度 最后编辑于 2013-10-13 13:33:40
TOP
9#

回复 14# 阳光枫林 的帖子

早上好!枫林兄弟,好,就按你的方法去做,多谢!
最后编辑多半度 最后编辑于 2013-10-14 08:22:01
TOP
发新话题 回复该主题