

说起定制安装家庭影院,不能不提嵌入式的扬声器产品,别以为吸顶和入墙的喇叭,都是仅仅是专业类目的产品,在民用领域之中,越来越多的高端定制影院,都会选用吸顶和入墙产品,在定制影院市场蓬勃的美国,大量的家庭都会在家中选择嵌入式扬声器来制作家庭影院,也因为这个原因,美国的大部分音箱品牌,都在很早的时候投入嵌入式产品的研发,无论是主攻监听、Hi-Fi还是多声道的品牌,都有推出自家的嵌入式扬声器产品,而作为美国扬声器新锐力量的GoldenEar Technology金耳朵,也同样看重这个市场,并针对定制安装领域推出Invisa 7000和Invisa MPX系列产品,从面市到进入中国市场,已经有一段日子,这次“影音新生活”就将对Invisa系列作介绍和测评,尝试探索这个系列扬声器的真正实力。


探索定制安装扬声器的更多可能性
从官方资料可以发现,Invisa 7000是专为用作安装在天花板上的主声道喇叭,它可以安装在透声幕布后方,或者有空腔的墙壁上,可以充当前置LCR声道使用,包括左、右或中心声道扬声器、侧面或后置环绕扬声器,我们可以只选用Invisa 7000即可打造一套嵌入式的环绕声系统,通过相同的扬声器配置即可实现声音的一致性,以及丰富的包围感。Invisa 7000的驱动单元的安装角度经过精确计算,具有良好的扩散角度,后面我们会作详细介绍。


再来看看Invisa MPX,这是一款双极性扬声器,具有良好的直接辐射和扩散性能,可应用于后方或侧面环绕声多声道的安装,也可以应用于多房间分布式音频设施。


Invisa系列还有600、525、Signalure Point Source以及HTR 7000这几个不同的型号,它们都在尺寸、单元配置、单元材质上有不尽相同的地方。


Invisa系列的优势,可以先从室内设计的角度来说,入墙喇叭可以巧妙地安装在墙壁内,不但减少了传统音箱占据室内过多的使用面积,并能将家庭音响与室内设计相互整合,令室内的布局显得更为整洁舒适和美观。另外一个不可避免要讨论的内容,传统的木头箱体的音箱,自身震动都会令音箱产生音染,影响声音的忠实还原。如何让箱体能够更坚固和不受震动影响呢?很多音箱的做法是在箱体内采用各种的补强措施,例如提高箱体硬度和重量。而对于入墙喇叭来说,房间的墙体除了是它的前障板之外同时也相当于它的箱体。因此,只要你家中的墙体有足够的强度和厚度,理论上,这样能轻易地解决“箱体”的震动问题,只要正确安装就能让入墙喇叭发出更真实和更准确的声音。


丰富的型号搭配,可以让影音设计师针对不同的房间以及用途,对家庭影院系统进行自由搭配,Invisa系列中每个型号的定价与市场上的类似产品相比,并不算太高,但是以入门至中端定位的产品来说,还是能看到这系列喇叭不同于一般喇叭的地方,最明显的就是单元配置,便宜的喇叭为了缩减成本,通常会尽量采用简单的设计,以最小的花费来打造喇叭以创造更大的利润。Invisa明显就在喇叭的电路板、分音器、单元、面板以及接口等等部分下足了功夫。
一体化设计、高品质分音器、独家高音单元
Invisa系列已经在过去几年,成功打造了数十个成功的定制安装案例,除了可以隐藏在建筑物的各个角落外,它还能提供相当优秀的声音效果。这里我们就特别介绍了一下GoldenEar Technology推出的High Velocity Folded Ribbon (HVFR),这个高音单元已经在 GoldenEar Technology的多款落地式扬声器上得到运用,除了Invisa 600以外的各个型号,我们都可以看到这个高音单元的运用,其中高频的声音表现有着细腻和大声压而低失真的表现,在不同的房间内使用,都有出色的指向性和声音渲染能力。


另外一个不能不提的,就是Invisa 525和Invisa 600/650/652采用一体式单元/框架/面板结构,这样一体成型的单元设计可以最大程度地减小其占用面积,减少墙壁的开孔尺寸,更易于隐藏音箱。整个音箱的结构由注入聚合物制成,通过磨具的定型,即可搭配高清晰度和宽广频响表现的发声单元,达到高品质的声音还原。


再来就是Invisa HTR 7000这个特殊型号,它具备特有的Focus-Field技术,整合了7英寸的中低音单元,以及HVFR高音辐射器,而且这个高音辐射器还可以在遮蔽的格栅下方倾斜,并且调整任何角度来提升指向性,可以在家庭影院系统中充当主声道或者环绕声道使用。


Invisa Signature Point Source (SPS)
如果问我,Invisa系列里面最吸引我的是那个型号,我一定选Invisa Signature Point Source,除了因为它是一个获奖型号外,它独特的设计可以适用于家庭影院以及2声道Hi-Fi组合使用,又可以和电视机搭配。最重要的是,它拥有紧凑的700x202mm的长宽尺寸,深度只有83mm,可以安装在任何标准的墙壁腔体之中。


在单元配置方面,Invisa Signature Point Source的高音单元是选用了前文介绍的折叠高音单元HVFR,4只5.25寸的单元分布在两侧,别以为这4个单元都是一样的功能,其中2只单元是负责中低频的还原,是高分析力的MVPP单元,频响的上限高达3kHz。


另外2只是高分析力的低音单元,专门负责低频还原,负责500Hz以下的频段,官方更声称这4只单元都是负责不同频响范围的,而且能够自然衔接,声音的中高低频的过渡相当平顺。毫无疑问,Invisa Signature Point Source的2+2+1的单元配置显得十分豪华。


其他设计细节还包括:
器材参数:
频率响应:25Hz – 35 kHz
输入灵敏度:92 dB/w/m
平均阻抗:8Ω
高音单元:专利高流速启动式折叠高音单元(High-Velocity Folded Ribbon (HVFR?))
中/低音单元:2只5.25寸高分析力铸造支架MVPP?单元,2只5.25寸高分析力铸造支架单元
体积(HxWxD):700x202X83mm
方型防尘面网尺寸(H x D):716x 217 mm
安装孔要求(HxD):674x182mm
每只重量:6.4 kg
建议匹配扩音机功率:10W – 350W
单位:只(不包含面罩)
Invisa HTR 7000
HTR 7000的设计可以用于高端家庭影院以及音乐系统中,它的特殊外形设计可以轻松安装在任何腔体内,而且磁性吸附的穿孔隔栅可以轻松把音箱隐藏起来。


采用7英寸的铸篮式单元,搭配HVFR高音。加上高频EQ开关,可以针对不同硬度和材质的墙壁和建筑物进行声音调教,官方介绍中就提到,这个EQ开关可以以最大程度地减少有害的声音衍射效应,并优化投射向房间中的声音指向性。


而且它还融入了FocusField技术与非周期性波形(NPW)衍射控制技术,各技术的融入都是以提升声音品质而设计的。


器材参数:
Invisa MPX
Invisa MPX带有双4.5英寸低音/中音单元,结合了直接辐射单元的优势,增强了声音在空间中分散性和包围感。这个可以满足多声道系统里面,作后置或侧面环绕声声道使用,而且我们还可以用来打造多房间的背景音乐系统安装。它结合了两个可以固定倾斜的爪式铸篮4.5英寸低音/中音单元,还有HVFR高音单元,并带有高频EQ开关。


与Invisa HTR 7000一样,它具有GoldenEar独特的非周期性衍射控制和Wave-Launch技术,可增强清晰度并减少向房间的无源声辐射。


器材参数:
频率响应:25Hz – 35 kHz
输入灵敏度:90 dB/w/m
平均阻抗:8Ω
高音单元:专利高流速启动式折叠高音单元(High-Velocity Folded Ribbon (HVFR?))
中/低音单元:2只4.5寸高分析力铸造支架MVPP?单元
体积(HxWxD):354x184x95mm
方型防尘面网尺寸(H x D):368 x 197 mm
安装孔要求(Hx D):324 x 199 mm
每只重量:2.7 kg
建议匹配扩音机功率:10W – 250W
单位:只
Invisa 600与525
这两款产品都是设计用于天花板和墙壁的嵌入式安装,单元的结构和音盆和线圈组件(525中为5.25英寸,650中为6.5英寸)是基于GoldenEar的Triton和Aon扬声器中使用的结构而设计的。


Invisa 600


Invisa 525
当然,两者都还结合了GoldenEar高速折叠HVFR高音扬声器和复杂的分频器,都具备了出色的性能。Invisa 525和650都标配圆形,而且外面是可上漆的MagneLock格栅,并提供可选的方形格栅。可以实现宽广的声音分散,这在分布式音频系统,多房间音乐系统中非常重要。高音扬声器通过扭转和旋转来优化性能,高频均衡开关可以精确匹配任何环境。


Invisa 600


Invisa 525
器材参数:
Invisa600
Invisa525
声音细节清晰,包围感扎实有力
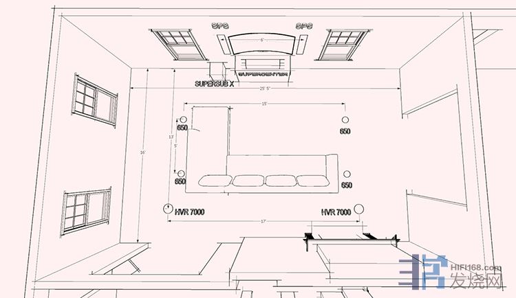
实际测试的部份,我们选择搭配的器材是Denon的AVC-8500H AV功放,13.2声道的配置,可以充分激活Invisa系列的整体性能,播放设备则是搭配芝杜的UHD3000旗舰播放器,超低音喇叭使用GoldenEar的SuperSub。我们把AVC-8500H设置成“Pure Direct”模式,将左右声道体型设为“Small”,这样一来在“Pure Direct”模式下所听到的就是喇叭真实的声音。我们用HTR 7000左主音箱,Invisa Signature Point Source和Invisa MPX作环绕,而Invisa 600与525作上方声场。


我们在Invisa HTR 7000和Signature Point Source“SPS”身上听不到偏颇的染色,许多嵌入式的喇叭由于结构不够扎实,往往一开声就会听到很重的高频失真,SPS完全没有这个问题,音色十分正确,在中性里又略带一点爆发了的感觉。它的HVFR高音单元设计,在聆听钢琴弹奏时可以听到清晰的细微泛音,空间感非常好,明亮的触键颗粒感又能保有软半球单体的平顺柔滑质感,不会过于刺激尖鋭。在中频段部分,人声形体不会过于“后退”,能够清晰分辨歌手的表情变化。


原本我担心喇叭的体型小,在小空间的视听室中声音会过度稀释,想不到Invisa Signature Point Source和Invisa MPX并不算太大问题,虽然没有大喇叭塞满整个房间的夸张量感,但声音的密度与形体都相当实在,低频段也能感受到明显的力道。适当将喇叭摆位拉开,藉由喇叭精确的结像能力与良好的分离度,就能有宽广的音场感,在观看电影和演唱会的时候,效果十分明显。无论是人声为主的流行乐或小编制演奏,这套Invisa系列都能有不错的细致演出。
明显的环绕包围感
我们继续试听多声道电影音效的部份,并将分频点设在100Hz,让超低音喇叭来加强极低频的震撼力,这样明显可以减轻Invisa系列的负担,使喇叭在中低频段能够有更好的表现。播放AMA全美音乐大奖的颁奖演唱会中,我们可以清晰感受到Dolby Atmos的的音像与环绕音效,而且可以听到丰富细节来自观众席的细微声响从后方环绕喇叭传来,让人有如置身演唱会现场,扎实的人声形体,让歌手的独特嗓音能精准呈现,爆发力十足。


在播放《John Wich 3》和《1917》的蓝光碟时,Invisa系列明亮的音色让四周音效拥有非常清晰的线条,让音像定位威十分明确,如《John Wich 3》的追车片段,就能够清楚听到引擎声的移动路径从后面往前冲。当然这类音效夸张的动作片非常需要低频的震撼力,GoldenEar的SuperSub虽然不是非常大型的超低音喇叭,其良好的延伸与优异性能,让Invisa系列也能够具有令人满意的低频能量,只要搭配一只SuperSub,也能给你爽快有劲的表现。
结语:
在定制安装的世界,嵌入式扬声器的拥有相当宽广的前景,而且通过不同型号的搭配,不同摆位的设定,还有不同功放的组合,我们就可以打造出专业电影院品质,甚至超过专业电影院的出色多声道效果,在家中享受高品质的影院体验。除了多声道的运用外,Invisa系列还适合各种背景音乐使用,通过Hi-End技术的加持,让多房间的音乐享受更加优质。多用途和优质性能的Invisa嵌入式扬声器系列,您一定要亲身体验。
文章转载自:https://iavlife.com/78279.html