发烧论坛

注册

 

发新话题 回复该主题

“2021广州影音展”7月中在越秀宾馆举行 [复制链接]

查看: 17667|回复: 24
1#


“ 2021广州影音展”将于7月16-18日在广州市小北路越秀宾馆举办。本届影音展将延续和发扬其独有的特色:既有琳瑯满目的音像制品展销,又有种类繁多的视听器材演示,还有星光璀璨的歌手明星签唱,更有发烧唱片界盛事——“2020年度发烧天碟榜”颁奖典礼,相信本届影音展定会令你目不暇接、留连忘返!
“好音者不如知音者,知音者不好乐音者。”“2021广州影音展”,何乐不为!
分享 转发
TOP
2#

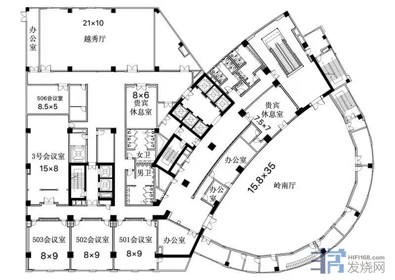
展场展位:
5楼会议中心有480平方的大会议厅及210平方中会议厅各一间,还有3间72平方的小会议室,十分适合大型的音响器材的展示。
8楼及以上客房为标准的商务客房和行政套房,房型皆为长方形,房间灯光柔和明亮,隔音良好。



TOP
3#

展会地点:
地点:越秀宾馆(广州市越秀区小北路198号)
交通及周边环境:
    越秀宾馆交通便利,毗邻5号线小北地铁站 、2号线纪念堂地铁站 、1号线农讲所地铁站 。公交小北花圈站,有6、10、36、66、76、93、864、191等多条线路停靠。
    越秀宾馆周边还有北园酒家、都城快餐、麦当劳、星巴克、尊宝比萨等不同档次的中西美食汇聚,丰俭由人任君选择。
TOP
4#

是否出现疫情啦广州?还能正常去吗
TOP
5#

今天通报了一例广州荔湾区一个老婆婆的案例
TOP
6#

又是一个大型活动
TOP
7#

是否出现疫情啦广州?还能正常去吗
发烧老友 发表于 2021/5/21 14:23:35
一颗红心,两手准备。
TOP
8#

希望疫情尽快结速吧,尽早接种疫苗实现全民群体免疫,国门始终要开放的。
TOP
9#

要延期吗
TOP
10#

现在说什么都为时尚早,一切看疫情。
用过,品尝过的才敢叫好!
TOP
发新话题 回复该主题