发烧论坛

注册

 

发新话题 回复该主题

求教--视听室规划 [复制链接]

查看: 11200|回复: 32
1#
本人在没有专业设计指导的情况下做了一个视听室,房间长6.2米宽4.5米高2.8米,在侧墙上钉了5cm厚的木方后填充了玻璃纤维,表面用8mm的水泥板覆盖,顶部做了木格和吸音,后墙有6平方的中空玻璃窗(挂了后窗帘,也挂过厚毯子,挂毯子后高频暗),搞完装修后,用xtz的测试仪做了测试,40hz有30db的滚降,中频也下陷,整个频响曲线非常差,作过多次音箱摆位调整(音箱喇叭中线离后墙2米,离侧墙0.75米),仍然不理想,实际听感低频缺失,中频有陷落,衔接不顺滑,肯请各位老师指导
希乱的曲线.jpg (, 下载次数:3)

jpg(2014/3/19 22:10:55 上传)

希乱的曲线.jpg

希乱的曲线低频.jpg (, 下载次数:0)

jpg(2014/3/19 22:19:43 上传)

希乱的曲线低频.jpg

最后编辑老常德 最后编辑于 2014-03-19 22:19:43
分享 转发
TOP
2#

因为没有搞完照片很差,委屈大家了,明天上
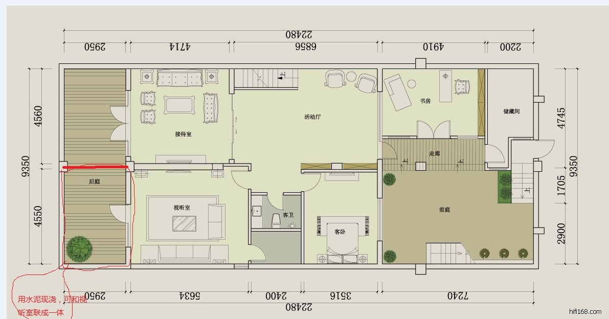
原设计图.jpg (, 下载次数:0)

jpg(2014/3/19 22:55:46 上传)

原设计图.jpg

最后编辑老常德 最后编辑于 2014-03-19 22:55:46
TOP
3#

想视听室到后院的墙拿掉,把视听室扩长到九米,又怕宽度和长度的比例成为1:2的倍率,如果采用那种入墙式的放置方法,把后院的墙上开二个洞,把音箱嵌入到墙中间,采用那种入墙式的方式,这样房间的比例不会变,能满足波尔围线的要求,见示意图,只看到那些专业录音棚有那种照片,不知道那样嵌入到墙体后,声场的纵深度有无影响
示意图.jpg (, 下载次数:0)

jpg(2014/3/19 22:05:56 上传)

示意图.jpg

波尔围线.jpg (, 下载次数:0)

jpg(2014/3/19 22:05:56 上传)

波尔围线.jpg

TOP
4#

这曲线不用听了,百万音响也没辙
《常见疾病治病解说》最实用的家庭医生
http://daniel115.taobao.com
TOP
5#

呵呵,老大别看笑话啊,支招啊

类似这种把整个音箱嵌入到到墙体中间的搞法,有没有很好的声场,特别是声场的纵深感有无问题,他的音箱后面是个水泥空腔,我的音箱后面是另外一间房(把后院现浇弄成一间房,放点杂物,平时没用)
嵌入式喇叭1.jpg (, 下载次数:0)

jpg(2014/3/19 23:16:42 上传)

嵌入式喇叭1.jpg

最后编辑老常德 最后编辑于 2014-03-19 23:16:29
TOP
6#

楼主真是胆子大,这出去的可是白花花的银子呀
留声机脑壳淘宝黑胶唱片店http://shop102175991.taobao.com/
网络室内设计http://www.shejiben.com/sjs/1126466/case/
TOP
7#

原帖由 无难 于 2014-3-19 22:51:00 发表
楼主真是胆子大,这出去的可是白花花的银子呀

你指什么,是指现浇后面的房子吗,面积不大才14平方,问过了只要7千元包工包料,现浇到位,装修就更便宜了,就当换了几个电子管的,现在那曲线简直没法听啊,后院本来就在我自己家里,不影响别人家,物业不干涉的,这个现浇了,我楼上的阳台就更大了
最后编辑老常德 最后编辑于 2014-03-19 23:02:06
TOP
8#

涉及到环境俺觉得还是应该谋定而后动,设计也应该根据声学原理来做合理的安排,否则也就属于瞎折腾,费时费力不讨好,还不如不搞
留声机脑壳淘宝黑胶唱片店http://shop102175991.taobao.com/
网络室内设计http://www.shejiben.com/sjs/1126466/case/
TOP
9#

回复 8# 无难 的帖子

同感,还用了玻璃纤维这种有毒材料
TOP
10#

把装修全拆了重新搞吧...
倾谈音响 品味音乐 www.hiendlife.com,极品人生.
TOP
发新话题 回复该主题