发烧论坛

注册

 

发新话题 回复该主题

斗室怎样听交响乐? [复制链接]

查看: 9549|回复: 36
11#

回复: 斗室怎样听交响乐?

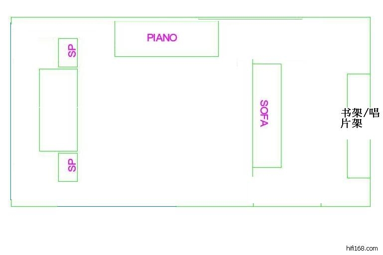
大約画了一下:19呎x10呎
room.JPG (, 下载次数:108)

jpg(2007/11/5 9:29:45 上传)

room.JPG

最后编辑cpyip 最后编辑于 2007-11-05 09:31:36
※有誤導時,敬請行家指正!
TOP
12#

回复:斗室怎样听交响乐?

大約画了一下:19呎x10呎
※有誤導時,敬請行家指正!
TOP
13#
TOP
14#

回复: 斗室怎样听交响乐?

原帖由 陆仁 于 2007-11-5 9:58:00 发表
参阅http://www.myav.com.tw/forum/sho ... c23&threadid=309895

老兄,那個也是我開的帖!
※有誤導時,敬請行家指正!
TOP
15#

回复: 斗室怎样听交响乐?

楼主,不知您有无这样试过?个人觉得会音场平衡许多,箱子尽量试着离开侧、后墙,在角落布置些吸音柱(可以试着用地毯卷起来),侧墙和后墙做好扩散。
room1.JPG (, 下载次数:56)

jpg(2007/11/5 14:27:11 上传)

room1.JPG

男人要多听音乐,才不会胡思乱想。
TOP
16#

回复:斗室怎样听交响乐?

要突破这个物理极限谈何容易?
TOP
17#

回复:斗室怎样听交响乐?

斗室发烧不必求全。
而是音乐和主人近距离的交流。
TOP
18#

回复: 斗室怎样听交响乐?

原帖由 面包 于 2007-11-5 14:48:00 发表
斗室发烧不必求全。
而是音乐和主人近距离的交流。


偶像
人生应该是多彩的,我愿以我有限的生命去体验生活的五彩斑斓。
人生又是有限的,我将用永不满足的精神来充实自己的生命。
一个奇妙的世界:http://sprsong.taobao.com/
TOP
19#

回复: 斗室怎样听交响乐?

原帖由 anfield 于 2007-11-5 14:27:00 发表
楼主,不知您有无这样试过?个人觉得会音场平衡许多,箱子尽量试着离开侧、后墙,在角落布置些吸音柱(可以试着用地毯卷起来),侧墙和后墙做好扩散。

主要和家人的矛盾,還有家居的矛盾,不易解决,要妥協オ可和平共處。
※有誤導時,敬請行家指正!
TOP
20#

回复:斗室怎样听交响乐?

嗯,理解,那只能从器材上入手了,后级推力/控制力要加强,线材换成控制力好的。
男人要多听音乐,才不会胡思乱想。
TOP
发新话题 回复该主题